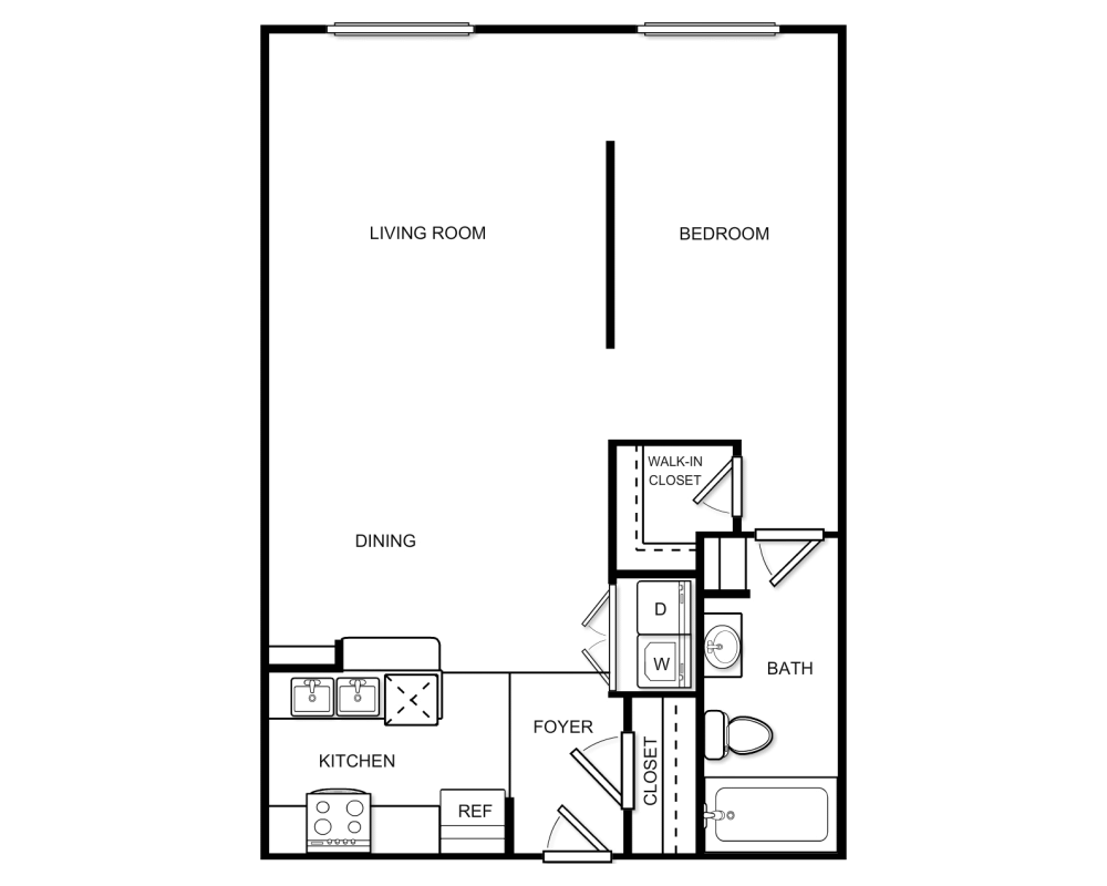
Studio | 1 Bath

1 Beds
1 Baths

Details

Overview

Residences at the Domain Apartments in Austin: Work, Play, and Live in Style

Enjoy immediate proximity to retail, restaurants, industry, and more at your apartment in Austin’s “Second Downtown.” A tranquil courtyard welcomes you into the Residences at the Domain, a sophisticated community featuring spacious apartments with floor-to-ceiling windows and private balconies and patios. Residents are treated to a modern fitness center and a resort-style pool that is sure to impress. Enjoy walkability to one of the many company campuses of Apple, Dell, IBM, Q2 Stadium, Google, Meta, or Amazon, life here is the perfect blend of work and play.

Details

  • Home area (sqft):
    498 sqft
  • Rooms:
    1
  • Beds:
    1
  • Baths:
    1
  • Price ($):
    $999
  • Year built:
    2012

Features

  • Dryer
  • Gym
  • Lawn
  • Microwave
  • Outdoor Shower
  • Quartz countertops
  • Refrigerator
  • Retail view
  • Smart Home + GiGstreem Internet
  • Swimming Pool
  • TV Cable
  • Washer
  • WiFi

Virtual Tour

Google Nearby Places

Be the first to review “Studio | 1 Bath”

Rating